Selektuj strukturu
Napredna pretraga
Pretraži

Oglas rs-7923

018/390 220
Selektuj strukturu
Napredna pretraga
Pretraži

Oglas rs-7923

018/390 220
Početna
info@proagent.rs
+381 (0)66 410 100
+381 (0)66 401 100
Vožda Karađorđa 24/3

Odmah useljiv dvoiposoban stan sa PDV-om kod Vojne bolnice

rs-7923

Niš, Bulevar Zorana Đinđića
Prodaja
148200 €
proagent photo proagent photo proagent photo proagent photo proagent photo proagent photo proagent photo proagent photo
ID:
rs-7923

Niš, Bulevar Zorana Đinđića

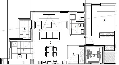
rodaje se nov dvoiposoban stan kod Vojne bolnice. Stan je površine 52m2, nalazi se na I spratu stambene zgrade sa liftom. Sastoji se od hodnika, dnevne (kombinovane) sobe sa kuhinjom i trpezarijom, dve spavaće sobe, kupatila i terase. Stambeno-porodični objekat se sastoji od glavnog ulaza, pripadajućih podrumskih prostorija, video nadzora na i oko objekta i parking mesta, sa više vrste osvetljenja, jednog savremenog lifta, kako i same instalacije koje će biti ugrađene u svaki stan. U izgradnji se koristi najkvaliteniji termo blok, granitna keramika, višeslojni parket, mono blok u kupatilima, linijski slivnik, staklena tuš kabina, spoljašnja Aluminijumska stolarija sa aluminijimskim roletnama, izolacija i dekorativna ukrasna fasada i led rasveta. Grejanje će biti etažno sa svojim zasebnim kotlovima. Moguća je kupovina parking mesta na parceli, od kojih je većina natkrivena, po ceni od 8000eur. Sama pozicija objekta se nalazi u delu grada koji je jako miran, okružen zelenilom i infrastukturom koja je izgrađena u blizini ( škole, vrtići,tržni centar, pijaca, klinički centar, marketi ). U cenu je uključen PDV i kupci prvog stana imaju pravo na povraćaj PDV-a u iznosu od 10%. Hvala Vam što ste pogledali oglas. Za više informacija o ovoj ili drugim nekretninama i zakazivanje razgledanja kontaktirajte agenta na broj telefona iz oglasa (poziv, sms, viber) ili putem e-maila. Kompletnu ponudu dostupnih nekretnina možete pronaći na našem sajtu.Agencija Proagent nekretnine je upisana u Registru posrednika pod brojem: 940.

Dodatne informacije:

Površina: 52m2
Grejanje: Etažno
Struktura: Dvoiposoban
Sprat: 1
Tip gradnje: Novogradnja

Opremljenost:

Terasa
Lift
Novogradnja
Kontakt:
Proagent DJS
Pozovite nas i saznajte više o ovom oglasu.

Povezani oglasi: