Selektuj strukturu
Napredna pretraga
Pretraži

Oglas rs-7862

018/390 220
Selektuj strukturu
Napredna pretraga
Pretraži

Oglas rs-7862

018/390 220
Početna
info@proagent.rs
+381 (0)66 410 100
+381 (0)66 401 100
Vožda Karađorđa 24/3

Jednoiposoban stan u stambenom objektu dizajniranom po meri porodice, u mirnijem delu grada, Trošarina, povraćaj PDV-a

rs-7862

Niš, Trošarina
Prodaja
92170 €
proagent photo proagent photo proagent photo proagent photo proagent photo
ID:
rs-7862

Niš, Trošarina

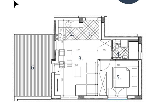
U ponudi je stambeni objekat spratnosti Su+P+2+Ps, smešten na dobroj lokaciji, u mirnijem delu grada na Trošarini. Prodaje se jednoiposoban stan površine 33,51m2+15m2, na III spratu, bez lifta. U gradnji se koriste visokokvalitetni materijali: fasadni zidovi će biti obloženi termoizolacijom i imaju povećanu debljinu, spoljašnji zidovi od bloka debljine 20cm, koji obezbeđuje vrhunsku zvučnu i termoizolaciju,podovi će biti obloženi parketom, dok će podovi kuhinje i kupatila biti obloženi kvalitetnom keramikom, biće postavljena stolarija sa roletnama i razvedena instalacija za grejanje. Nalazi se u blizini škole, vrtića, sportskog centra, odlično je povezan sa svim delovima grada i predstavlja pravo mesto za Vaš kvalitetan i komforan porodičan život. U cenu je uključen PDV i kupci prvog stana imaju pravo na povraćaj PDV-a u iznosu od 10%. Hvala Vam što ste pogledali oglas. Za više informacija o ovoj ili drugim nekretninama i zakazivanje razgledanja kontaktirajte agenta na broj telefona iz oglasa (poziv, sms, viber) ili putem e-maila. Kompletnu ponudu dostupnih nekretnina možete pronaći na našem sajtu. Agencija Proagent nekretnine je upisana u Registru posrednika pod brojem: 940.

Dodatne informacije:

Površina: 48m2
Grejanje: Etažno
Struktura: Jednoiposoban
Sprat: 3
Tip gradnje: Novogradnja

Opremljenost:

Terasa
Lift
Novogradnja
Kontakt:
Proagent BS
Pozovite nas i saznajte više o ovom oglasu.

Povezani oglasi: