Selektuj strukturu
Napredna pretraga
Pretraži

Oglas rs-7759

018/390 220
Selektuj strukturu
Napredna pretraga
Pretraži

Oglas rs-7759

018/390 220
Početna
info@proagent.rs
+381 (0)66 410 100
+381 (0)66 401 100
Vožda Karađorđa 24/3

Dvoiposoban stan u novogradnji sa povraćajem PDV-a, Durlan

rs-7759

Niš, Durlan
Prodaja
142000 €
proagent photo proagent photo proagent photo
ID:
rs-7759

Niš, Durlan

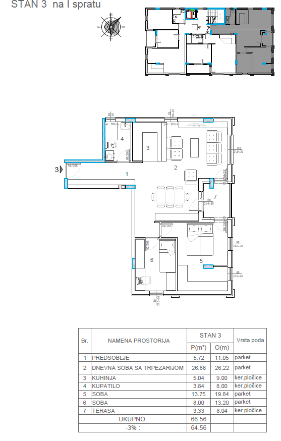
Prodaje se dvoiposoban stan u novogradnji u Durlanu u stambenoj zgradi koja ima P+4 sprata. Stan je površine 64,56m2, na I spratu. Struktura stana: ulazni hodnik, dnevni boravak sa trpezarijom i kuhinjom, dve spavaće sobe, kupatilo i terasa. Stanovi su veoma kvalitetne i moderne gradnje: fasada po standardima energetske efikasnosti objekata, 10cm stiropor spoljne izolacije, izolacija podova i zidova, PVC stolarija, 4s klima gard stakla, elektro podizači za roletne, eg kompletno, masiv parket , sanitarija prve klase. Zgrada je smeštena u mirnoj ulici na lepoj lokaciji, idealnoj za mirno, porodično stanovanje i u neposrednoj je blizini svih objekata neophodnih za svakodnevni život. U cenu je uključen PDV i kupci prvog stana imaju pravo na povraćaj PDV-a u iznosu od 10%. Za više informacija o ovoj ili drugim nekretninama i zakazivanje razgledanja kontaktirajte agenta na broj telefona iz oglasa (poziv, sms, viber) ili putem e-maila. Kompletnu ponudu dostupnih nekretnina možete pronaći na našem sajtu. Agencija Proagent nekretnine je upisana u Registru posrednika pod brojem: 940.

Dodatne informacije:

Površina: 65m2
Grejanje: Etažno
Struktura: Dvoiposoban
Sprat: 1
Tip gradnje: Novogradnja

Opremljenost:

Terasa
Lift
Novogradnja
Kontakt:
Proagent NS
Pozovite nas i saznajte više o ovom oglasu.

Povezani oglasi: