Selektuj strukturu
Napredna pretraga
Pretraži

Oglas rs-7679

018/390 220
Selektuj strukturu
Napredna pretraga
Pretraži

Oglas rs-7679

018/390 220
Početna
info@proagent.rs
+381 (0)66 410 100
+381 (0)66 401 100
Vožda Karađorđa 24/3

Dvoiposoban stan u modernoj novogradnji sa povraćajem PDV-a, na lepoj lokaciji u blizini keja

rs-7679

Niš, Centar
Prodaja
132180 €
proagent photo proagent photo
ID:
rs-7679

Niš, Centar

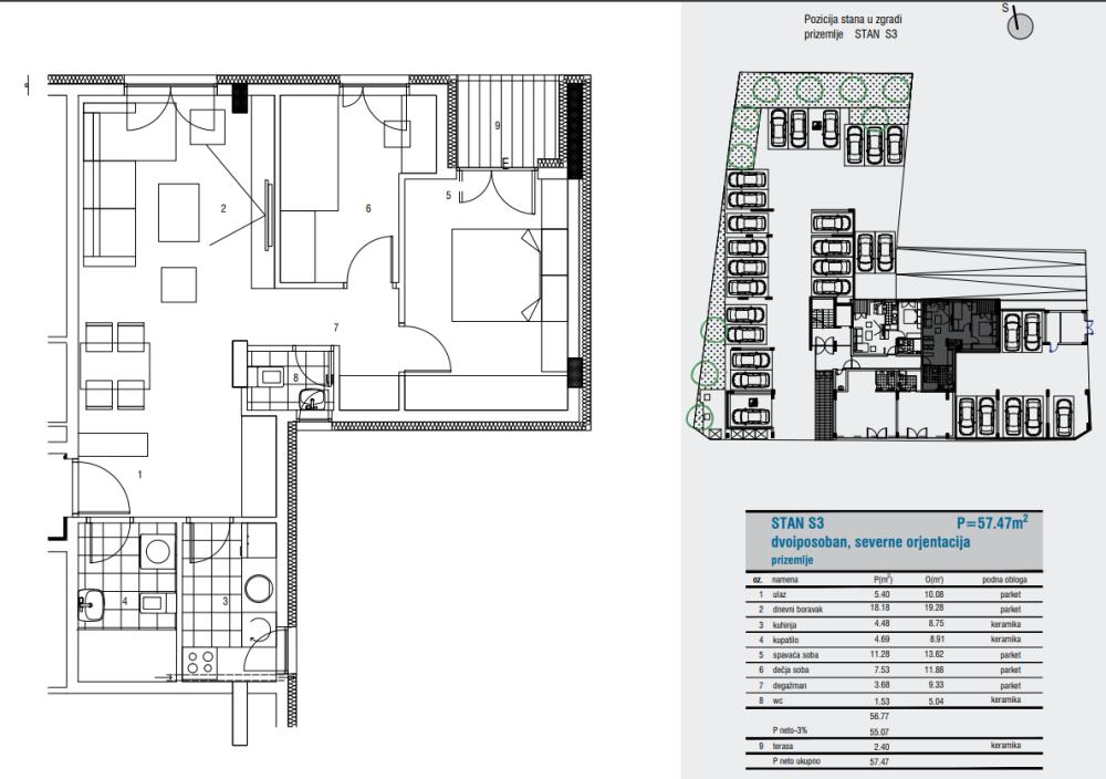
U ponudi je dvoiposoban stan koji se nalazi u novom stambenom objektu spratnosti Po1+Po2+P+5 na lepoj lokaciji u blizini keja. Površine je 57,47m2, nalazi se na prizemlju stambene zgrade sa liftom. Sastoji se iz ulaznog hodnika, dnevnog boravka, dve spavaće sobe, kupatila. Stanovi su projektovani tako da kupcima pružaju ugodnost i udobnost stanovanja. Poseban akcenat je na poštovanju najnovijih zahteva energetske efikasnosti što će Vam pružiti mogućnost luksuznog stanovanja uz minimalne troškove. U gradnji se koriste najkvalitetniji materijali: fasadni zidovi višeslojni od giter blokova debljine 20cm, na podovima će biti postavljen parket I klase, dok će u kuhinji i kupatilu biti postavljena granitna keramika, unutrašnja vrata biće od furniranog medijapaana, stolarija će biti PVC profila, grejanje će biti etažno. Krov će biti ravni sa zelenom površinom. Uz stan se dobija ostava a postoji mogućnost kupovine i parking mesta. Sama lokacija objekta će Vam pružiti sve što Vam je potrebno za miran, kvalitetan i komforan porodičan život. U cenu je uključen PDV i kupci prvog stana imaju pravo na povraćaj PDV-a u iznosu od 10%. Za više informacija o ovoj ili drugim nekretninama i zakazivanje razgledanja kontaktirajte agenta na broj telefona iz oglasa (poziv, sms, viber) ili putem e-maila. Kompletnu ponudu dostupnih nekretnina možete pronaći na našem sajtu. Agencija Proagent nekretnine je upisana u Registru posrednika pod brojem: 940.

Dodatne informacije:

Površina: 58m2
Grejanje: Etažno
Struktura: Dvoiposoban
Sprat: Prizemlje
Tip gradnje: Novogradnja

Opremljenost:

Lift
Novogradnja
Kontakt:
Proagent NS
Pozovite nas i saznajte više o ovom oglasu.

Povezani oglasi: