Selektuj strukturu
Napredna pretraga
Pretraži

Oglas rs-7570

018/390 220
Selektuj strukturu
Napredna pretraga
Pretraži

Oglas rs-7570

018/390 220
Početna
info@proagent.rs
+381 (0)66 410 100
+381 (0)66 401 100
Vožda Karađorđa 24/3

Trosoban stan u modernoj novogradnji sa PDV-om na Paliluli

rs-7570

Niš, Palilula
Prodaja
154470 €
proagent photo proagent photo proagent photo proagent photo proagent photo
ID:
rs-7570

Niš, Palilula

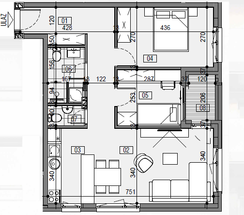
U ponudi je moderno dizajnirana novogradnja smeštena na jednoj odlepših lokacija lokacija na Paliluli. Zgrada je spratnosti Po+P+5 sa liftom. Prodaje se trosoban stan površine 63,83m2 na I spratu. Sastoji se iz ulaznog hodnika, dnevnog boravka sa trpezarijom, kuhinje, dve spavaće sobe, kupatila i terase. U gradnji se koriste najkvalitetniji materijali koji ispunjavaju sve uslove energetske efikasnosti kao i zahteve savremenog načina života porodice: stolarija će biti aluminijum sa troslojnim staklom, u kupatilu će biti postavljena keramika I klase, video nadzor i video interfon,grejanje će biti podno (električni kotao na struju). Postoji mogućnost kupovine parking mesta u garaži po ceni od 17000e sa PDV-om. Smeštena u blizini Palilulske pijace i centra grada poseduje sve što Vam je potrebno za miran, kvalitetan i komforan porodičan život. U cenu je uključen PDV i kupci prvog stana imaju pravo na povraćaj PDV-a u iznosu od 10%. Hvala Vam što ste pogledali oglas. Za više informacija o ovoj ili drugim nekretninama i zakazivanje razgledanja kontaktirajte agenta na broj telefona iz oglasa (poziv, sms, viber) ili putem e-maila. Kompletnu ponudu dostupnih nekretnina možete pronaći na našem sajtu. Agencija Proagent nekretnine je upisana u Registru posrednika pod brojem: 940.

Dodatne informacije:

Površina: 64m2
Grejanje: Etažno
Struktura: Trosoban
Sprat: 1
Tip gradnje: Novogradnja

Opremljenost:

Parking
Terasa
Lift
Novogradnja
Kontakt:
Proagent AM
Pozovite nas i saznajte više o ovom oglasu.

Povezani oglasi: