Selektuj strukturu
Napredna pretraga
Pretraži

Oglas rs-7081

018/390 220
Selektuj strukturu
Napredna pretraga
Pretraži

Oglas rs-7081

018/390 220
Početna
info@proagent.rs
+381 (0)66 410 100
+381 (0)66 401 100
Vožda Karađorđa 24/3

Jednoiposoban stan u kvalitetnoj novogradnji sa PDV-om, Palilula

rs-7081

Niš, Palilula
Prodaja
83100 €
proagent photo proagent photo
ID:
rs-7081

Niš, Palilula

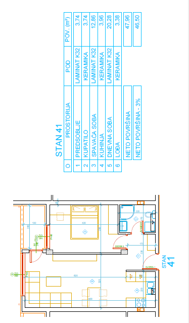
Na prodaju stan u stambenoj zgradi PO+PR+P4, na prizemlju ukupne površine 46,17m2. Stan se sastoji od predsoblja, dnevne sobe sa kuhinjom i trpezarijom, spavaće sobe, kupatila i terase. Stambeni objekat će biti izgrađen po standardima ,izolacija od kamene vune d-10 cm, kvalitetna keramika iz uvoza, stolarija spoljašna PVC i sa Alu roletnama sa termo ispunom zastakljena sa niskoemisionim vakumiranim staklima, unutrašnja od furniranog medijapana, kvalitetna podna obloga sa završnim belim drvenim lajsnama, ulazna sigurnosna vrata sa atestom na vatrootpornost, u kupatilu ugradni vodokotlić, usponski tuš, stakleni paravan u skladu sa uslovima kupatila, umivaonik sa ormarićem,sve jednoručne baterije. Grejanje je mermernim grejnim telima u kombinaciji sa kaloliferom na električnu energiju i po jedna ugrađena klima u stanu. Postoji mogućnost kupovine parking mesta u sklopu stambenog objekta. U cenu je uključen PDV i kupci prvog stana imaju pravo na povraćaj PDV-a u iznosu od 10%. Hvala Vam što ste pogledali oglas. Za više informacija o ovoj ili drugim nekretninama i zakazivanje razgledanja kontaktirajte agenta na broj telefona iz oglasa (poziv, sms, viber) ili putem e-maila. Kompletnu ponudu dostupnih nekretnina možete pronaći na našem sajtu. Agencija Proagent nekretnine je upisana u Registru posrednika pod brojem: 940.

Dodatne informacije:

Površina: 46m2
Grejanje: Etažno
Struktura: Jednoiposoban
Sprat: Prizemlje
Tip gradnje: Novogradnja

Opremljenost:

Terasa
Lift
Novogradnja
Kontakt:
Proagent JM
Pozovite nas i saznajte više o ovom oglasu.

Povezani oglasi: