Selektuj strukturu
Napredna pretraga
Pretraži

Oglas rs-6781

018/390 220
Selektuj strukturu
Napredna pretraga
Pretraži

Oglas rs-6781

018/390 220
Početna
info@proagent.rs
+381 (0)66 410 100
+381 (0)66 401 100
Vožda Karađorđa 24/3

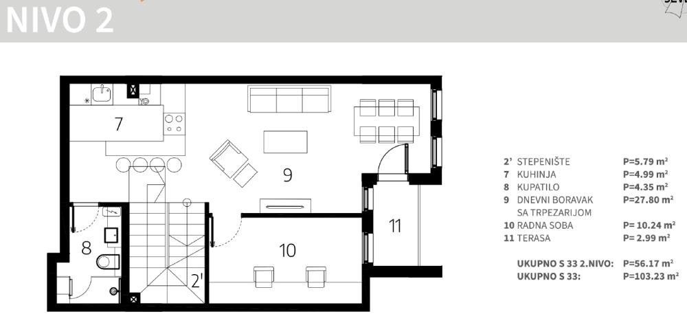
Duplex sa PDV-om u modernom stambenom objektu na Paliluli

rs-6781

Niš, Palilula
Prodaja
190980 €
proagent photo proagent photo proagent photo proagent photo proagent photo
ID:
rs-6781

Niš, Palilula

U ponudi je duplex stan u modernom stambenom objektu spratnosti Po+P+5, koji je smešten na veoma mirnoj lokaciji, sa prelepim pogledom na grad i prestavlja odlično mnesto za sve koji žele beg od gradske buke i gužve. Površine je 103,23m2 i ima pristup sopstvenom travnjaku na krovu zgrade. Stanovi su pažljivo projektovani kako bi bili komforni, dobro osvetljeni i funkcionalni za porodičan život. Zgrada se gradi po najvišim standardima, na podovima će biti postavljen tarket I klase, dok će kuhinje i kupatila biti obložena španskom keramikom visokog kvaliteta, biće postavlljena PVC stolarija sa aluminijumskim roletnama što će osigurati dobru izolaciju, u kupatilu će biti postavljeni walk-in tuševi, grejnaje će biti etažno, a zgrada će imati bešumni lift i video nadzor. Postoji mogućnost kupovine parking mesta i to: garažno mesto po ceni od 6500eur i parking mesto po ceni 2500eur. U cenu je uključen PDV i kupci prvog stana imaju pravo na povraćaj PDV-a u iznosu od 10%.Za više informacija o ovoj ili drugim nekretninama i zakazivanje razgledanja kontaktirajte agenta na broj telefona iz oglasa (poziv, sms, viber) ili putem e-maila. Kompletnu ponudu dostupnih nekretnina možete pronaći na našem sajtu. Agencija Proagent nekretnine je upisana u Registru posrednika pod brojem: 940.

Dodatne informacije:

Površina: 103m2
Grejanje: Etažno
Struktura: Troiposoban i veći
Sprat: 5
Tip gradnje: Novogradnja

Opremljenost:

Parking
Terasa
Lift
Novogradnja
Duplex
Kontakt:
Proagent NS
Pozovite nas i saznajte više o ovom oglasu.

Povezani oglasi: